El polígono industrial de la Lavacolla afectará al Camino de Santiago, advierten vecinos

La parroquia compostelana de Sabugueira, cerca de Lavacolla, se ha convertido en el epicentro de una nueva batalla por el uso del territorio en la capital gallega, donde la necesidad urgente de suelo industrial colisiona frontalmente con las demandas de preservación del medio rural y el patrimonio histórico. 


|

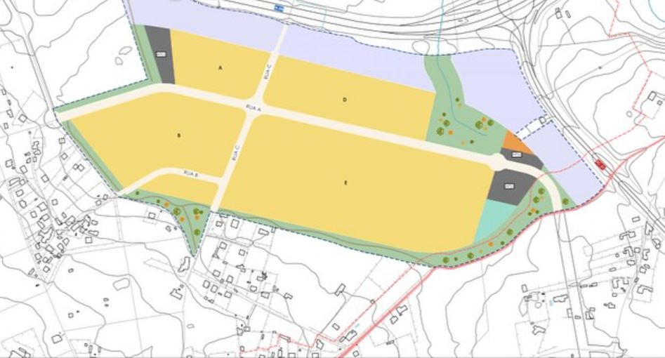
Mapa de la zona para el polu00edgono de Sabugueira
Mapa de la zona para el polu00edgono de Sabugueira

 

Cientos de vecinos, respaldados por organizaciones ecologistas, han decidido plantar cara a la tramitación administrativa de un macropolígono de iniciativa privada que, según denuncian, amenaza con alterar para siempre su modo de vida. La iniciativa busca paliar la crónica falta de espacio para empresas en Santiago, pero se ha topado con un muro de alegaciones que advierten sobre riesgos irreversibles para el sistema hídrico y el Camino de Santiago. 

 

Televés es una de las compañías que podría estar interesada en instalarse en el nuevo Polígono. El conflicto estalló definitivamente tras conocerse los detalles del Proyecto de Interés Autonómico (PIA) impulsado por la firma Pontepedroso Real Estate S.L., vinculada al Grupo Televés. 

 

Los residentes de la zona, apoyados por la Sociedade Galega de Historia Natural y la Federación Galega de Ecoloxistas en Acción, han presentado una batería de objeciones técnicas y ambientales. Su principal temor radica en que la transformación de estas 60 hectáreas de suelo rústico y de concentración parcelaria suponga un golpe mortal para la calidad de vida de quienes habitan el entorno del aeropuerto, que ya soportan una carga de infraestructuras considerable.

 

La preocupación más alarmante que esgrimen los afectados tiene que ver con el agua, un recurso clave en la Galicia rural. Según los informes manejados por la oposición vecinal, la ubicación elegida es una zona húmeda rica en acuíferos de gran pureza. Advierten que los desmontes necesarios para nivelar un terreno con fuertes pendientes alterarán el nivel freático y compactarán el suelo, destruyendo la red de drenaje natural. Esto, aseguran, no solo secará manantiales y fuentes esenciales para el día a día de la aldea, sino que incrementará exponencialmente el riesgo de inundaciones y contaminación en el río Sionlla, un afluente clave del Tambre que abastece a la ciudad y desemboca en la Ría de Muros-Noia.

 

Mapa del plan para el poligono de Sabugueira
Mapa del plan para el poligono de Sabugueira

Posible afectación al Camino de Santiago  

Otro de los puntos calientes de la controversia es la supuesta afectación directa al Camino de Santiago Patrimonio de la Humanidad. Los vecinos alegan que los terrenos proyectados para el área industrial lindan con el Camino de Santiago Francés, la arteria espiritual y turística más importante de la comunidad.

 

Los alegantes sostienen que el proyecto incluye viales que atravesarían la ruta de peregrinación, generando un impacto visual y paisajístico incompatible con la protección que otorga la UNESCO. Para los vecinos, convertir la entrada de los peregrinos a Compostela en un escenario de naves y asfalto no solo degradaría el entorno cultural, sino que desvirtuaría la experiencia de miles de caminantes que recorren los últimos kilómetros hacia la Catedral.

 

Desde la perspectiva de la conservación de la biodiversidad, las acusaciones son igualmente graves. Las entidades ecologistas denuncian que la iniciativa invade hábitats prioritarios protegidos por la Red Natura 2000. Argumetan que la eliminación de carballeiras, bosques autóctonos y brañas para dar paso al cemento supondría una pérdida irreparable de flora y fauna.

 

Sin embargo, la moneda tiene otra cara que no puede ignorarse: la asfixia económica para algunas empresas compostelanas por la falta de espacio. La iniciativa de Pontepedroso Real Estate surge en un contexto donde Santiago de Compostela lleva años perdiendo oportunidades de negocio por no tener dónde ubicar nuevas compañías. El proyecto pretende desarrollar casi 300.000 metros cuadrados de superficie útil en dos fases, delimitados por la autovía A-54 y los accesos al aeropuerto. Para el tejido empresarial, esta bolsa de suelo es oxígeno en un mercado inmobiliario industrial que se encuentra totalmente congelado.

 

Un sector empresarial desesperado por no poder crecer

La postura del sector productivo es clara y de total respaldo a la creación de nuevo suelo, venga de donde venga. José Fernández Alborés, presidente de la Asociación Área Empresarial do Tambre, ha calificado la promoción privada en Lavacolla como una noticia estupenda y absolutamente necesaria. Desde la patronal advierten que la demanda es altísima mientras que la oferta lleva casi dos años siendo nula. Esta situación está provocando que empresas de logística y del metal estén dilatando sus inversiones o buscando alternativas fuera de la capital, ante la imposibilidad física de asentarse en los polígonos existentes como el de Costa Vella, donde todo el suelo está vendid.

 

La tramitación del proyecto se encuentra actualmente en una fase determinante, con el periodo de consulta ambiental recién finalizado a mediados de noviembre. La administración autonómica deberá evaluar ahora si el informe ambiental estratégico es viable frente a las numerosas alegaciones presentadas. 

 

Por su parte, el Concello de Santiago mantiene una postura institucional prudente, remitiéndose a la planificación urbanística vigente. Fuentes municipales han señalado que el Plan Xeral de Ordenación Municipal (PXOM) contempla suelo industrial suficiente que puede ser desarrollado tanto por iniciativa pública como privada, sin entrar a valorar en profundidad el conflicto social desatado en Sabugueira. Esta distancia administrativa contrasta con la urgencia que transmiten los empresarios, quienes recuerdan que, incluso en el mejor de los escenarios y siendo muy optimistas, las máquinas no entrarán a trabajar hasta dentro de dos años debido a la lenta burocracia.

 

El futuro de Lavacolla se juega ahora en los despachos de la Xunta de Galicia, que debe dictaminar sobre la viabilidad ambiental del PIA.


 

relacionada Raxoi licita la redacción del proyecto de conexión de Lavacolla (Sabugueira) a la red de abastecimiento municipal
relacionada Televés cambia a su CEO tras 13 años: Gonzalo Redondo se pone al frente en el sitio de Santiago Rey
Última hora

Sin comentarios

Escribe tu comentario




He leído y acepto la política de privacidad

No está permitido verter comentarios contrarios a la ley o injuriantes. Nos reservamos el derecho a eliminar los comentarios que consideremos fuera de tema.
Última hora
Cabeceralomasleido 1
Cabecerarecomendados 1

Galiciapress
Plaza de Quintana, 3 15704 Santiago de Compostela
Tlf (34)678803735

redaccion@galiciapress.es o direccion@galiciapress.es
RESERVADOS TODOS LOS DERECHOS. EDITADO POR POMBA PRESS,S.L.
Aviso legal - Política de Cookies - Política de Privacidad - Configuración de cookies - Consejo editorial - Publicidad
Powered by Bigpress
CLABE